您好,欢迎来绿装我家!
当前位置:首页 > 工长案例 > 案例详情
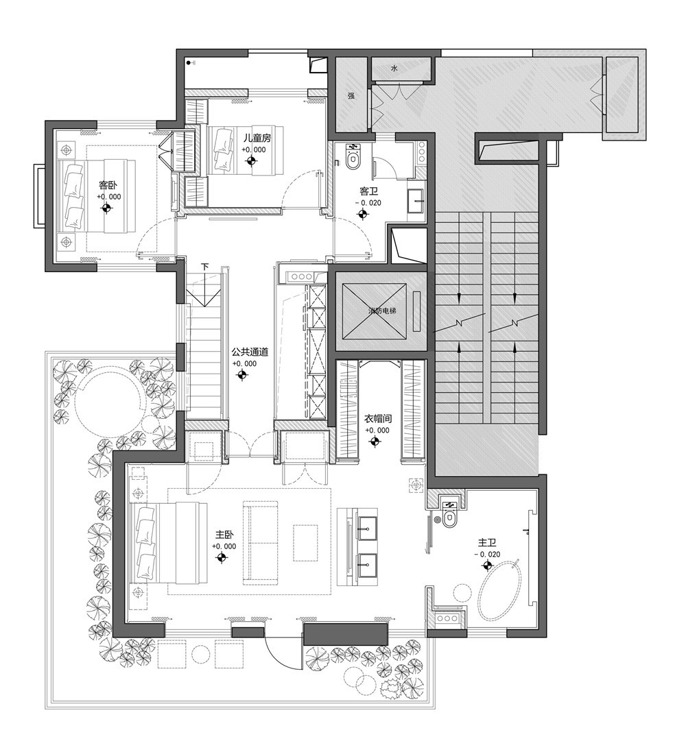
尽可能不用装饰和取消多余的东西
阅读数: 3236
尽可能不用装饰和取消多余的东西,认为任何复杂的设计,没有实用价值的特殊部件及任何装饰都会增加建筑造价,强调形式应更多地服务于功能。






















