图片

 服务中心

关于我们
购物指南
服务保障
配送方式
售后服务

商务合作

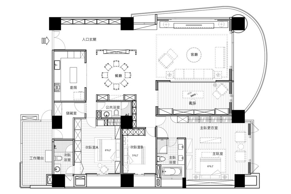
强调形态的隐喻、符号和文化

阅读数: 4527

强调形态的隐喻、符号和文化、历史的装饰主义。往往有种是雾非雾的非概念性直觉,而又不失当地文化表现,及历史的装饰性表现。

上一篇
下一篇
购物指南
服务保障

配送方式

售后服务

绿装我家
图片
建装之家
图片

免责声明:本网站部分内容由用户自行上传,如权利人发现存在误传其作品情形,请及时与本站联系。

Copyright  © 2019  陕西绿企科技集团有限公司  绿装我家  www.zwj.cn  (Green Home All Rights Reserved) 版权所有  陕ICP备17021266号

图片
图片
图片
图片

选择绿装我家网发布装修招标4大优势

1、全程免费服务

全程服务业主,不收取人份和费用

2、省30%装修费

去中介化、去渠道化F2C模式

3、免费获取设计

3D云设计,所见即所得

4,平台统一监管

统一售后服务,省去中间环节

全程免费服务

总共已有:

名业主免费发布了装修需求!

图片

扫一扫关注我们

免费报价
关注我们
返回顶部